
7900 N Federal HWY Boca Raton, FL 33487
1.58 Acres Lot
UPDATED:
Key Details
Property Type Single Family Home, Vacant Land
Sub Type Single Family Detached
Listing Status Active
Purchase Type For Sale
Subdivision S/D Of 32-46-43 In
MLS Listing ID RX-11139219
HOA Y/N No
Annual Tax Amount $16,206
Tax Year 2024
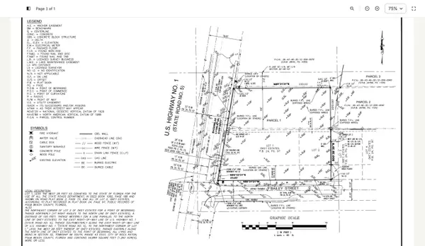
Lot Size 1.580 Acres
Property Sub-Type Single Family Detached
Property Description
Location
State FL
County Palm Beach
Area 4180
Zoning R1B
Exterior
Community Features Comforms to Zoning, Plan App Required, Platted, Subject to Zoning Ch
Utilities Available Electric Service Available, Municipal Sewer
Waterfront Description Canal Width 1 - 80,Intracoastal,No Fixed Bridges,Ocean Access,Riprap
Water Access Desc Dock Available,UP to 40 Ft Boat
View Canal, Other
Present Use Comforms to Zoning,Plan App Required,Platted,Subject to Zoning Ch
Exposure West
Building
Lot Description 1 to < 2 Acres
Others
Miscellaneous Other
Acceptable Financing Cash, Conventional
Horse Property No
Listing Terms Cash, Conventional
Financing Cash,Conventional
Virtual Tour https://www.propertypanorama.com/7900-N-Federal-Highway-Boca-Raton-FL-33487--RX-11139219/unbranded






